Sukses dengan proyek perumahannya di Jatihandap, Developer ini pasarkan proyek perumahan terbarunya di Ciwastra. Lokasi perumahan juga relatif dekat dengan beberapa infrastruktur yang ada di sekitarnya, seperti Stadion GBLA, Masjid Raya Al Jabbar, Stasiun kereta Cimekar, dan stasiun kereta cepat Woosh di Tegalluar.
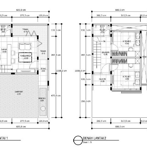
Unit yang dipasarkan ada 1 tipe, yaitu tipe 55 dengan luas tanah 60 m2 dan 66 m2 dengan total ada 42 unit. Desain tipe 55 (2 lantai) yang terdiri dari 2 kamar tidur, 1 kamar mandi, ruang tamu yang luas, teras depan dan belakang, dapur, serta balkon di lantai 2. Selain itu, rumah didesain dengan lorong di sisi samping rumah yang bisa mengakses masuk ke pintu depan dan pintu belakang. Untuk pintu depan posisinya tidak menghadap langsung ke depan rumah, sehingga memberikan kesan privasi kepada penghuni rumah. Sedangkan untuk teras belakang bisa juga difungsikan sebagai ruang cuci dan jemur pakaian.



| Tipe | : 55/60 |
| Kamar tidur | : 2 |
| Kamar mandi | : 1 |
| Harga jual | : 690 juta |
| DP | : 10% |
| Cicilan | : 4,7 jutaan (20 tahun) |
Klik nomor Whatsapp Marketing :
Whatsapp Marketing Perumahan SamDesya
Atau klik logo Whatsapp di bawah
rumah, rumah bandung, rumah di bandung, rumah di bandung timur, rumah di Ciwastra, perumahan, perumahan bandung, perumahan di bandung, perumahan di bandung timur, perumahan di Ciwastra, rumah dijual, rumah dijual bandung, rumah dijual di bandung, perumahan dijual, rumah dijual bandung, rumah dijual di bandung
