Amara Cipadung Residence


Perumahan di daerah cipadung ini awalnya harga dimulai dari 250 juta, sekarang sudah hampir 350 juta. Kenaikan harganya dalam 1 tahun pun untuk semua perumahan di bandung timur di daerah pegunungan ini bisa tembus di angka 100 juta..

Image

Dari site plan.. terhitung jumlah unitnya mencapai 26 unit saja.. Tapi sekarang yang masih tersedia adalah hanya 8 unit saja.. So.. bagi yang memang masih mau berburu perumahan ini diprediksi dalam setahun bisa sudah habis..

Image

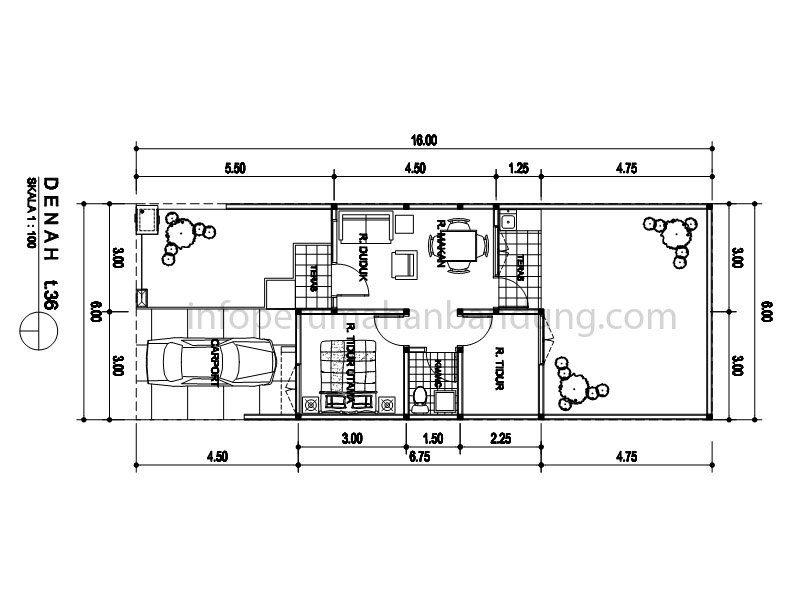
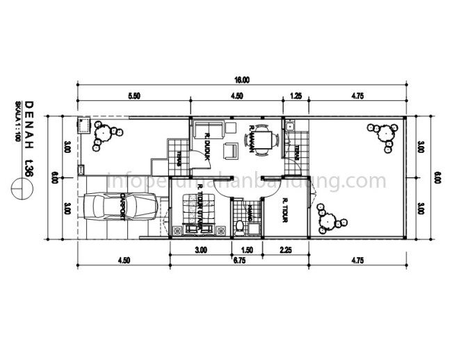
Semuanya adalah tipe 36 namun memiliki luas tanah yang beda..

Image

Image

Ok karena Ipbblog mendapatkannya via email.. jadi Ipbblog belum survey, seperti apa penampakannya, sehingga Ipbblog tidak bisa bahas banyak seperti perumahan di bandung timur lainnya. Tapi secara umum, jika dari 26 unit dan sekarang tersisa 8 unit (dari brosur tertera) itu sebuah sinyal baik bahwa perumahan ini akan segera menata lingkungannya dengan cepat.

Image

Hubungi :
0878.3055.3130

4 pemikiran pada “Amara Cipadung Residence

    1. Sekemala, bukannya perumahan puri kumala, yg sy tanya amara cipadung,

      jawab :
      bagaimana pak.. saya belum faham ni.. hehe maaff

      1. mau survei nih bang admin..hehehe….

        jawab :
        boleh… bisa diupdate foto-fotonya nih ke “perumahandibandung@gmail.com”

Silahkan jika ada pertanyaan dan informasi lainnya